Clique aqui para fechar esta janela                                                                            Voltar a página anterior

ESTUDO DA FÍSICA
O SEU SITE DE ESTUDO NA NET
  SIMULADO ON-LINE  
ENEM 2001 ( II Parte ) 
BOA SORTE
 
22. O esquema representa o ciclo do enxofre na natureza, sem considerar a intervenção humana.

O ciclo representado mostra que a atmosfera, a litosfera, a hidrosfera e a biosfera, naturalmente,
I. são poluídas por compostos de enxofre.
II. são destinos de compostos de enxofre.
III. transportam compostos de enxofre.
IV. são fontes de compostos de enxofre.
Dessas afirmações, estão corretas, apenas,
a) I e II.
b) I e III. 
c) II e IV.
d) I, II e III. 
e) II, III e IV.
 
23. Algumas atividades humanas interferiram significativamente no ciclo natural do enxofre, alterando as quantidades das substâncias indicadas no esquema. Ainda hoje isso ocorre, apesar do grande controle por legislação.
Pode-se afirmar que duas dessas interferências são resultantes da
a) queima de combustíveis em veículos pesados e da produção de metais a partir de sulfetos metálicos.  
b) produção de metais a partir de óxidos metálicos e da vulcanização da borracha.
c) queima de combustíveis em veículos leves e da produção de metais a partir de óxidos metálicos.
d) queima de combustíveis em indústria e da obtenção de matérias-primas a partir da água do mar. 
e) vulcanização da borracha e da obtenção de matérias-primas a partir da água do mar.
 
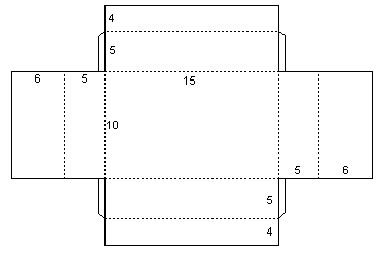
24. Um fabricante de brinquedos recebeu o projeto de uma caixa que deverá conter cinco pequenos sólidos, colocados na caixa por uma abertura em sua tampa. A figura representa a planificação da caixa, com as medidas dadas em centímetros.

Os sólidos são fabricados nas formas de
I. um cone reto de altura 1 cm e raio da base 1,5 cm.
II. um cubo de aresta 2 cm.
III. uma esfera de raio 1,5 cm.
IV. um paralelepípedo retangular reto, de dimensões 2 cm, 3 cm e 4 cm.
V. um cilindro reto de altura 3 cm e raio da base 1 cm.
O fabricante não aceitou o projeto, pois percebeu que, pela abertura dessa caixa, só poderia colocar os sólidos dos tipos
a) I, II e III.
b) I, II e V. 
c) I, II, IV e V.
d) II, III, IV e V.
e) III, IV e V. 
 
25. Uma região industrial lança ao ar gases como o dióxido de enxofre e óxidos de nitrogênio, causadores da chuva ácida. A figura mostra a dispersão desses gases poluentes.

Considerando o ciclo da água e a dispersão dos gases, analise as seguintes possibilidades:
I. As águas de escoamento superficial e de precipitação que atingem o manancial poderiam causar aumento de acidez da água do manancial e provocar a morte de peixes.
II. A precipitação na região rural poderia causar aumento de acidez do solo e exigir procedimentos corretivos, como a calagem.
III. A precipitação na região rural, embora ácida, não afetaria o ecossistema, pois a transpiração dos vegetais neutralizaria o excesso de ácido.
Dessas possibilidades,
a) pode ocorrer apenas a I.
b) pode ocorrer apenas a II.
c) podem ocorrer tanto a I quanto a II. 
d) podem ocorrer tanto a I quanto a III. 
e) podem ocorrer tanto a II quanto a III.
 
26. Várias estratégias estão sendo consideradas para a recuperação da diversidade biológica de um ambiente degradado, dentre elas, a criação de vertebrados em cativeiro. Com esse objetivo, a iniciativa mais adequada, dentre as alternativas abaixo, seria criar 
a) machos de umas espécies e fêmeas de outras, para possibilitar o acasalamento entre elas e o surgimento de novas espécies. 
b) muitos indivíduos da espécie mais representativa, de forma a manter a identidade e a diversidade do ecossistema.
c) muitos indivíduos de uma única espécie, para garantir uma população geneticamente heterogênea e mais resistente.
d) um número suficiente de indivíduos, do maior número de espécies, que garanta a diversidade genética de cada uma delas. 
e) vários indivíduos de poucas espécies, de modo a garantir, para cada espécie, uma população geneticamente homogênea.
 
 
27. Nas conversas diárias, utiliza-se freqüentemente a palavra "próprio" e ela se ajusta a várias situações. Leia os exemplos de diálogos:
I - A Vera se veste diferente!
- É mesmo, é que ela tem um estilo próprio.
II - A Lena já viu esse filme uma dezena de vezes! Eu não consigo ver o que ele tem de tão maravilhoso assim.
- É que ele é próprio para adolescente.
III - Dora, o que eu faço? Ando tão preocupada com o Fabinho! Meu filho está impossível!
- Relaxa, Tânia! É próprio da idade. Com o tempo, ele se acomoda.
Nas ocorrências I, II e III, "próprio" é sinônimo de, respectivamente,
a) adequado, particular, típico.
b) peculiar, adequado, característico. 
c) conveniente, adequado, particular. 
d) adequado, exclusivo, conveniente.
e) peculiar, exclusivo, característico.
28. Um produtor de larvas aquáticas para alimentação de peixes ornamentais usou veneno para combater parasitas, mas suspendeu o uso do produto quando os custos se revelaram antieconômicos.
O gráfico registra a evolução das populações de larvas e parasitas.

O aspecto biológico, ressaltado a partir da leitura do gráfico, que pode ser considerado o melhor argumento para que o produtor não retome o uso do veneno é:
a) A densidade populacional das larvas e dos parasitas não é afetada pelo uso do veneno.
b) A população de larvas não consegue se estabilizar durante o uso do veneno. 
c) As populações mudam o tipo de interação estabelecida ao longo do tempo. 
d) As populações associadas mantêm um comportamento estável durante todo o período.
e) Os efeitos das interações negativas diminuem ao longo do tempo, estabilizando as populações.
 
29. Num determinado bairro há duas empresas de ônibus, ANDABEM e BOMPASSEIO, que fazem o trajeto levando e trazendo passageiros do subúrbio ao centro da cidade. Um ônibus de cada uma dessas empresas parte do terminal a cada 30 minutos, nos horários indicados na tabela.

Horário dos ônibus

ANDABEM  BOMPASSEIO
6h00min  6h10min
6h30min  6h40min
7h00min  7h10min
7h30min  7h40min
Carlos mora próximo ao terminal de ônibus e trabalha na cidade. Como não tem hora certa para chegar ao trabalho e nem preferência por qualquer das empresas, toma sempre o primeiro ônibus que sai do terminal. Nessa situação, pode-se afirmar que a probabilidade de Carlos viajar num ônibus da empresa ANDABEM é
a) um quarto da probabilidade de ele viajar num ônibus da empresa BOMPASSEIO.
b) um terço da probabilidade de ele viajar num ônibus da empresa BOMPASSEIO.
c) metade da probabilidade de ele viajar num ônibus da empresa BOMPASSEIO. 
d) duas vezes maior do que a probabilidade de ele viajar num ônibus da empresa BOMPASSEIO. 
e) três vezes maior do que a probabilidade de ele viajar num ônibus da empresa BOMPASSEIO.
 
 
I - Para o filósofo inglês Thomas Hobbes (1588-1679), o estado de natureza é um estado de guerra universal e perpétua. Contraposto ao estado de natureza, entendido como estado de guerra, o estado de paz é a sociedade civilizada. 
Dentre outras tendências que dialogam com as idéias de Hobbes, destaca-se a definida pelo texto abaixo.
II - Nem todas as guerras são injustas e correlativamente, nem toda paz é justa, razão pela qual a guerra nem sempre é um desvalor, e a paz nem sempre um valor.
BOBBIO, N. MATTEUCCI, N PASQUINO, G. Dicionário de Política, 5ª ed. Brasília: Universidade de Brasília;
São Paulo: Imprensa Oficial do Estado, 2000.
30. Comparando as idéias de Hobbes (texto I) com a tendência citada no texto II, pode-se afirmar que
a) em ambos, a guerra é entendida como inevitável e injusta.
b) para Hobbes, a paz é inerente à civilização e, segundo o texto II, ela não é um valor absoluto. 
c) de acordo com Hobbes, a guerra é um valor absoluto e, segundo o texto II, a paz é sempre melhor que a guerra.
d) em ambos, a guerra ou a paz são boas quando o fim é justo. 
e) para Hobbes, a paz liga-se à natureza e, de acordo com o texto II, à civilização. 
 
31. Tropas da Aliança do Tratado do Atlântico Norte (OTAN) invadiram o Iraque em 1991 e atacaram a Sérvia em 1999.
Para responder aos críticos dessas ações, a OTAN usaria, possivelmente, argumentos baseados
a) na teoria da guerra perpétua de Hobbes.
b) tanto na teoria de Hobbes como na tendência expressa no texto II.   
c) no fato de que as regiões atacadas não possuíam sociedades civilizadas. 
d) na teoria de que a guerra pode ser justa quando o fim é justo. 
e) na necessidade de pôr fim à guerra entre os dois países citados. 
 
32. Existem diferentes formas de representação plana da superfície da Terra (planisfério).
Os planisférios de Mercator e de Peters são atualmente os mais utilizados.

Mercator

Peters

Apesar de usarem projeções, respectivamente, conforme e equivalente, ambas utilizam como base da 
projeção o modelo:
a) b)
c) d)
e)
 
33. Numa região, originalmente ocupada por Mata Atlântica, havia, no passado, cinco espécies de pássaros de um mesmo gênero. Nos dias atuais, essa região se reduz a uma reserva de floresta primária, onde ainda ocorrem as cinco espécies, e a fragmentos de floresta degradada, onde só se encontram duas das cinco espécies.
O desaparecimento das três espécies nas regiões degradadas pode ser explicado pelo fato de que, nessas regiões, ocorreu
a) aumento do volume e da freqüência das chuvas.
b) diminuição do número e da diversidade de hábitats. 
c) diminuição da temperatura média anual. 
d) aumento dos níveis de gás carbônico e de oxigênio na atmosfera. 
e) aumento do grau de isolamento reprodutivo interespecífico. 
 
34. O trecho a seguir é parte do poema "Mocidade e morte", do poeta romântico Castro Alves:
Oh! eu quero viver, beber perfumes
Na flor silvestre, que embalsama os ares;
Ver minh'alma adejar pelo infinito,
Qual branca vela n'amplidão dos mares.
No seio da mulher há tanto aroma...
Nos seus beijos de fogo há tanta vida...
–– Árabe errante, vou dormir à tarde
À sombra fresca da palmeira erguida.
Mas uma voz responde-me sombria:
Terás o sono sob a lájea fria.
ALVES, Castro. Os melhores poemas de Castro Alves. Seleção de Lêdo Ivo. São Paulo: Global, 1983.
 
Esse poema, como o próprio título sugere, aborda o inconformismo do poeta com a antevisão da morte prematura, ainda na juventude.
A imagem da morte aparece na palavra
a) embalsama.
b) infinito.  
c) amplidão.
d) dormir. 
e) sono. 
 
 
35. Considere os seguintes acontecimentos ocorridos no Brasil:
- Goiás, 1987 - Um equipamento contendo césio radioativo, utilizado em medicina nuclear, foi encontrado em um depósito de sucatas e aberto por pessoa que desconhecia o seu conteúdo. Resultado: mortes e conseqüências ambientais sentidas até hoje.
- Distrito Federal, 1999 - Cilindros contendo cloro, gás bactericida utilizado em tratamento de água, encontrados em um depósito de sucatas, foram abertos por pessoa que desconhecia o seu conteúdo. Resultado: mortes, intoxicações e conseqüências ambientais sentidas por várias horas.
Para evitar que novos acontecimentos dessa natureza venham a ocorrer, foram feitas as seguintes propostas para a atuação do Estado:
I. Proibir o uso de materiais radioativos e gases tóxicos.
II. Controlar rigorosamente a compra, uso e destino de materiais radioativos e de recipientes contendo gases tóxicos.
III. Instruir usuários sobre a utilização e descarte destes materiais.
IV. Realizar campanhas de esclarecimentos à população sobre os riscos da radiação e da toxicidade de determinadas substâncias.
Dessas propostas, são adequadas apenas
a) I e II.
b) I e III. 
c) II e III. 
d) I, III e IV. 
e) II, III e IV. 

 
36. O consumo total de energia nas residências brasileiras envolve diversas fontes, como eletricidade, gás de cozinha, lenha, etc. O gráfico mostra a evolução do consumo de energia elétrica residencial, comparada com o consumo total de energia residencial, de 1970 a 1995.
Verifica-se que a participação percentual da energia elétrica no total de energia gasto nas residências brasileiras cresceu entre 1970 e 1995, passando, aproximadamente, de
a) 10% para 40%.
b) 10% para 60%. 
c) 20% para 60%. 
d) 25% para 35%. 
e) 40% para 80%. 
 
 
 
37. Segundo um especialista em petróleo (Estado de S. Paulo, 5 de março de 2000), o consumo total de energia mundial foi estimado em 8,3 bilhões de toneladas equivalentes de petróleo (tep) para 2001. A porcentagem das diversas fontes da energia consumida no globo é representada no gráfico.
Segundo as informações apresentadas, para substituir a energia nuclear utilizada é necessário, por exemplo, aumentar a energia proveniente do gás natural em cerca de
a) 10%.
b) 18%. 
c) 25%.  
d) 33%.  
e) 50%. 
 
 
38. O problema enfrentado pelo migrante e o sentido da expressão "sustança" expressos nos quadrinhos acima, podem ser, respectivamente, relacionados a
a) rejeição / alimentos básicos.
b) discriminação / força de trabalho. 
c) falta de compreensão / matérias-primas. 
d) preconceito / vestuário. 
e) legitimidade / sobrevivência. 
 
39. Os dados da tabela mostram uma tendência de diminuição, no Brasil, do número de filhos por mulher.
Evolução das Taxas de Fecundidade

Época

Número de filhos por mulher

Século XIX 7
1960 6,2
1980 4,01
1991 2,9
1996 2,32
Fonte: IBGE, contagem da população de 1996.
Dentre as alternativas, a que melhor explica essa tendência é:
a) Eficiência da política demográfica oficial por meio de campanhas publicitárias.
b) Introdução de legislações específicas que desestimulam casamentos precoces.
c) Mudança na legislação que normatiza as relações de trabalho, suspendendo incentivos para trabalhadoras com mais de dois filhos.
d) Aumento significativo de esterilidade decorrente de fatores ambientais.
e) Maior esclarecimento da população e maior participação feminina no mercado de trabalho. 
 
 
40. Nas últimas eleições presidenciais de um determinado país, onde 9% dos eleitores votaram em branco e 11% anularam o voto, o vencedor obteve 51% dos votos válidos. Não são considerados válidos os votos em branco e nulos.
Pode-se afirmar que o vencedor, de fato, obteve de todos os eleitores um percentual de votos da ordem de
a) 38%
b) 41%. 
c) 44%. 
d) 47%. 
e) 50%. 
 

 

 
41. A partir do primeiro semestre de 2000, a ocorrência de casos humanos de febre amarela silvestre extrapolou as áreas endêmicas, com registro de casos em São Paulo e na Bahia, onde os últimos casos tinham ocorrido em 1953 e 1948. Para controlar a febre amarela silvestre e prevenir o risco de uma reurbanização da doença, foram propostas as seguintes ações:
I. Exterminar os animais que servem de reservatório do vírus causador da doença.
II. Combater a proliferação do mosquito transmissor.
III. Intensificar a vacinação nas áreas onde a febre amarela é endêmica e em suas regiões limítrofes.
É efetiva e possível de ser implementada uma estratégia envolvendo
a) a ação II, apenas.
b) as ações I e II, apenas.
c) as ações I e III, apenas. 
d) as ações II e III, apenas.
e) as ações I, II e III. 

 
 
42. No trecho abaixo, o narrador, ao descrever a personagem, critica sutilmente um outro estilo de época: o romantismo.
"Naquele tempo contava apenas uns quinze ou dezesseis anos; era talvez a mais atrevida criatura da nossa raça, e, com certeza, a mais voluntariosa. Não digo que já lhe coubesse a primazia da beleza, entre as mocinhas do tempo, porque isto não é romance, em que o autor sobredoura a realidade e fecha os olhos às sardas e espinhas; mas também não digo que lhe maculasse o rosto nenhuma sarda ou espinha, não. Era bonita, fresca, saía das mãos da natureza, cheia daquele feitiço, precário e eterno, que o indivíduo passa a outro indivíduo, para os fins secretos da criação."
ASSIS, Machado de. Memórias Póstumas de Brás Cubas. Rio de Janeiro: Jackson,1957.
A frase do texto em que se percebe a crítica do narrador ao romantismo está transcrita na alternativa:
a) ... o autor sobredoura a realidade e fecha os olhos às sardas e espinhas ...
b) ... era talvez a mais atrevida criatura da nossa raça ...
c) Era bonita, fresca, saía das mãos da natureza, cheia daquele feitiço, precário e eterno, ... 
d) Naquele tempo contava apenas uns quinze ou dezesseis anos ...
e) ... o indivíduo passa a outro indivíduo, para os fins secretos da criação.
 
 

RESULTADOS

Sua nota será:
Você acertou as questões:
Você errou as questões:

VERIFICAR GABARITO